





和モダンの家のお蔵入りプラン。
お蔵入りプラン【伍】のプランとは、別の案件です。
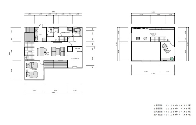
開放的な吹き抜けの上には
広めのスタディーコーナーがあり、
趣味の書籍をたくさん収納できます。
リビングとスタディーコーナーが吹き抜けでつながり
お互いの存在を感じながらも
緩やかに空間を分けています。
キッチンは、個室にしたいという要望で
LDの奥に配置しています。
LDK一体型の間取りが多いですが、
最近は、このようにキッチンを分けるデザインも増えています。
個人的には、キッチンが分かれている間取りは好きです。
こうすることで、リビングダイニングに生活感が出ないので、
すっきりとした空間を作ることができます。
寝室は、ホテルライクなデザインにしてみました。
東からの朝日を受けられるように、窓を大きく配置しています。
和室と2階のオーディオルームも楽しそうです。

